Successful Agriturismo with Agricamping, Restaurant and Bio Products
Marche - The Marches, Macerata
€785,000 ID: 175027Beautiful, operational, and successful agriturismo with agricamping, restaurant, and organic products, located in pristine nature with stunning panoramic views.
A farmhouse with an apartment, a tiny stone house, an outbuilding with a professional kitchen, restaurant, shop/reception, and sanitary facilities for 12 camping pitches overlooking the hills, medieval villages, and the Sibillini Mountains.
This fantastic property consists of:
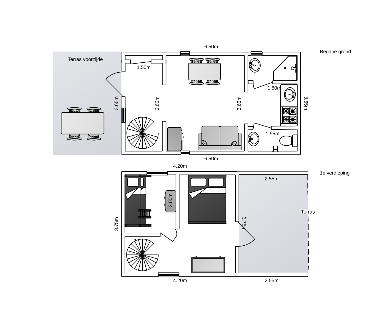
The Main Building
A completely newly built farmhouse made of brick and plaster, approximately 310 square meters spread over two floors, with a portico of about 14 x 2.5 meters, currently being fully rebuilt according to the latest earthquake-resistant regulations.
The project, expected to be completed in about 20 months, includes a spacious living room and kitchen of approximately 65 square meters on the ground floor, with access to the portico through large French doors, as well as a bathroom and about 75 square meters of workshop space. (This space could also be used as additional sleeping quarters with two extra bedrooms.)
An internal staircase leads to the first floor with a bathroom, two double bedrooms, and a storage room.
An external staircase leads to a second living room, two double bedrooms, and a bathroom. From the first floor, a hatch and retractable ladder provide access to a convenient attic.
The interior layout and finishes can be customized during construction.
The farmhouse will be equipped with underfloor heating on both floors, an energy generation photovoltaic system with storage battery of 10kW, and hot water will be generated and stored using solar energy.
This makes the farmhouse highly energy-efficient, thanks to excellent insulation, efficient systems such as a heat pump and solar panels, and a healthy indoor climate.
Tiny Stone House
This brick house, formerly a stable, has been fully restored into a charming small cottage, preserving its characteristic elements and materials.
It is approximately 45 square meters and consists of a living room, kitchen, bathroom, and separate toilet on the ground floor. On the first floor, there is a double bedroom and a single bedroom.
The house is equipped with windows with mosquito nets and air conditioning (which also heats) on both floors.
It has its own covered terrace, garden, and private parking space with a 7.4kW charging station for an electric car.
Electricity is partly supplied by the 6 kW solar panels with 5kW storage system on the third building: the multifunctional outbuilding.
Electricity is partly supplied by the system on the third building: the multifunctional outbuilding (see below).
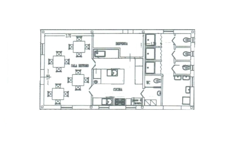
Multifunctional Outbuilding
This earthquake-resistant building, newly constructed in 2017, is approximately 75 square meters and consists of three parts: a dining/shop area, a professional kitchen with storage and toilet, and a sanitary area for the campsite. The professional kitchen/laboratory, fully equipped for preparing meals and producing goods, is in perfect condition, practically new. The space is heated with a pellet stove and features maintenance-free frames with extra soundproof glass and screens.
The shop area also accommodates several tables, with additional tables located on the covered outdoor terrace with glass sliding doors.
The outdoor terrace, optionally heated with patio heaters, offers beautiful views and features a stylish, characteristic brick barbecue.
Energy for this building, the tiny stone house, and the campsite is provided by a 6kW photovoltaic system with a 5kW storage battery and grid connection.
Hot water and cooking are powered by two gas water heaters.
Agriturismo Activities Camping
The beautifully landscaped and terraced campsite features pitches located on different terraces built onto the hill, each offering stunning panoramic views.
Each pitch has its own power connection, a nearby water point, and plenty of privacy.
The associated sanitary facilities include 3 showers, 3 toilets, washbasins, a dishwashing area, and a washing machine.
The agricamping includes a playground with a play caravan, children’s games and books, playground equipment, and a ping-pong table.
There is also a swimming pool measuring 8 x 4.7 meters and 1.3 meters deep, built on reinforced concrete (construction year 2025).
The pool provides daytime refreshment and is complemented by a tiled, covered terrace with an outdoor shower heated by solar energy.
The number of camping pitches can be expanded.
The current owners serve extensive Italian dinners on the terrace in the evenings.
Agricultural
The agriturismo is organically certified and includes approximately 4.5 hectares of land, part of which is leased.
It features an olive grove (olive oil production), agricultural land (grain/spelt production), a vineyard (wine production), fruit and nut trees (e.g., jam production), a vegetable garden (for restaurant use, preservation, and personal use), and a chicken coop with outdoor space.
An irrigation system is in place for watering the vegetables.
There is an option to take over agricultural machinery such as tractors, plows, rotavators, flail mowers, etc., as well as equipment for wine production and bottling and labeling of olive oil.
Restaurant
The current restaurant accommodates 32 guests, both from the campsite and external visitors.
Shop
The farm produces 100% organic products, used in restaurant meals and processed into goods sold locally and internationally.
The agriturismo has an online sales system and a large customer base with weekly orders and returning clients.
This business can be continued by the new owners.
There is a balanced income from product sales, the restaurant, and the campsite.
ADDITIONAL FEATURES
-
A 1000-liter water pressure system with pump for constant pressure
-
A septic tank for sewage
-
A groundwater well
CONDITION AND FINISHES
The farmhouse is under construction according to the latest regulations for earthquake resistance and acoustic and thermal insulation.
The layout and finishing materials can be customized.
Both the tiny stone house and the restaurant/shop are in perfect structural and internal condition.
USE AND POTENTIAL
Its location—close to both the sea and the hiking trails of the Sibillini Mountains—makes this beautiful agricamping a top destination for those seeking peace in untouched nature, while still having the option each morning to choose between a beach visit or a mountain hike.
There are also cycling/mountain biking routes nearby.
The property is located in the stunning landscape of Le Marche, just a 5-minute drive from the medieval village of Penna San Giovanni, with bars, restaurants, and supermarkets.
The Sibillini Mountains are 20 minutes away, and the coast of Porto San Giorgio is 45 minutes away.
The airports of Ancona, Perugia, and Pescara are just over an hour’s drive.
LOCATION
-
Supermarket: 5 km
-
Coast: 45 km
-
Lake: 15 km
-
Ski area: 40 minutes
-
Airport: 80 minutes
-
Details
- Note by advertiser
- Prime Location
- Property Type
- Farmhouse
- Status
- Excellent
- Category detail
- Country Seat
- Commerce category
- Hospitality (All)
- Total living m2
- 355 m²
- Stories / levels
- 2
- Plot size m2
- 45,000 m²
- Grounds HA or legal
- Grounds 1-5 HA
- Orientation
- Southerly
- Grounds Type
- Grounds with own source
- Central heating
- Heat Pump
- Scenery
- Mountains
- Sewage
- Septic Tank
-
Room information
- Total number of rooms
- 20
- Bedrooms
- 5
- All bathrooms
- 4
- Toilets
- 4
- Utility room
- yes
- Storage room
- yes
- Solarium
- yes
- Covered Patio
- yes
- Heat Pump
- yes
-
Special features
- Double glazing
- Gardens
- Swimming pool
- Covered Terrace
- Barbeque
- Workshop
- Air conditioning
- Irrigation system
- Induction Cooking
- Heating Solar
- Exterior Lights
- Fruit trees
- Solar hotwater
-
Services in the area
- Supermarket 5 km
- Shopping Center 20 km
- Dining out 5 km
- Primary school 5 km
- Hospital 20 km
- General Practioner 5 km
- Dental service 5 km
- Airport 100 km
- Train Station 35 km
- Golf Course 30 km
- River 3 km
- Lake 15 km
- Coast 45 km
- Skiing 40 km
- Bus , Metro, Tram yes


























































































.jpg)
.jpg)
.jpg)
.jpg)
.jpg)
.jpg)
.jpg)
.jpg)
.jpg)
.jpg)
.jpg)
.jpg)
.jpg)
.jpg)
.jpg)
.jpg)
.jpg)
.jpg)
.jpg)
.jpg)
.jpg)
.jpg)
.jpg)
.jpg)
.jpg)
.jpg)
.jpg)
.jpg)
.jpg)
.jpg)
%20a.jpg)
%20b.jpg)
.jpg)
.jpg)
.jpg)
.jpg)
.jpg)
.jpg)
.jpg)
.jpg)
.jpg)
%20a.jpg)
%20b.jpg)
.jpg)
.jpg)
.jpg)
.jpg)
.jpg)
.jpg)
.jpg)
.jpg)
.jpg)
.jpg)
.jpg)
.jpg)
.jpg)
.jpg)
.jpg)
%20a.jpg)
%20b.jpg)
%20d.jpg)
.jpg)
.jpg)
.jpg)
.jpg)
.jpg)
.jpg)
.jpg)
.jpg)
.jpg)
.jpg)
.jpg)
.jpg)
%20a.jpg)
%20b.jpg)
.jpg)
.jpg)
%20a.jpg)
.jpg)
.jpg)
%20a.jpg)
%20b.jpg)
%20c.jpg)
%20d.jpg)
%20e.jpg)
.jpg)
.jpg)
.jpg)
.jpg)
.jpg)