PRICE REDUCED! Restored farmhouse for sale in Monterubbiano Le Marche
Marche - The Marches
Sold ID: 127788PRICE REDUCED !
Restored farmhouse with amazing views of Sibillini Mountains and surrounding hills for sale in Monterubbiano Le Marche
This casale is about 20 minutes from the coast and the motorway at Pedaso in the province of Fermo. The airports of Ancona and Pescara are both just over an hour away.
There are many cultural and natural attractions within easy driving distance, Ascoli Piceno and Sibillini mountains to name just two.
The house itself at the top of a small hill and has exceptional views of the countryside, and in the distance, the Appenine Mountains to the West and the Adriatic sea to the East.
Access is along a 50m privately owned white road.
The outstanding feature of this restored farmhouse for sale in Marche is undoubtedly its position and the 360° views it offers.
The property consists of a main building, completely renovated over twenty years, an outbuilding used as a tool shed, a carport and a mature and well tended garden.
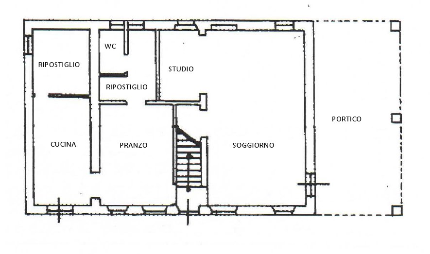
The main building is comfortable and finished in a rustic style. On the ground floor there is a kitchen, dining room, drawing room, larder, bathroom and portico. The first floor consists of 3 bedrooms, 1 bathroom and a large terrace. Adding another bedroom and bathroom on the terrace would be relatively easy.
The total amount of land is about 5000 sqm and includes a and olive grove with about 30 olives and a well maintained garden that has several beautiful mature trees such as oaks, Maritime Pines trees and Lebanese Cedar trees. There is plenty of room for the building of a pool.
The fixtures and fittings of this farmhouse for sale in Marche have been replaced over the course of the last 20 years.
All services are in good working order. The gas supply is private.
The property is correctly registered in the cadastre of Monterubbiano
The property has been correctly restored following planning permission gained from the Municipality of Monterubbiano
The property is privately owned
The enviable position and simple restoration make this house a very desirable holiday home.
ASKING PRICE REDUCED FOR QUICK SALE FROM 450.000 EURO TO 390.000 EURO NEGOTIABLE !!!
-
Details
- Note by advertiser
- Price Reduction
- Property Type
- Farmhouse
- Status
- Excellent
- Category detail
- Country Seat
- Total living m2
- 250 m²
- Stories / levels
- 2
- Plot size m2
- 2,780 m²
- Orientation
- All directions
- Grounds HA or legal
- Grounds 0-1 HA
- Central heating
- Gas
- Scenery
- Seaside
- Telephone
- ADSL/Cable
- Energy
- F 141
- max. occupancy
- 6
-
Room information
- Total number of rooms
- 10
- Bedrooms
- 3
- All bathrooms
- 2
- Garage
- Carport
- Garage car spaces
- 1
-
Special features
- Double glazing
- Open fireplace
-
Services in the area
- Supermarket 2 km
- Hospital 13 km
- Primary school 2 km
- Airport 80 km
- Golf Course 60 km
- Train Station 15 km
- Coast 11 km
- Skiing 65 km









































































































