Completely renovated whole town house on the edge of the historic center of Monte Rinaldo with a 360 ° view from the Sibillini to the Adriatic se
Marche - The Marches
Sold ID: 157464Completely renovated whole town house on the edge of the historic center of Monte Rinaldo with a 360 ° view from the Sibillini to the Adriatic sea.
Features
The house, unattached on 3 sides, has an open and very bright position. The layout is as follows:
-
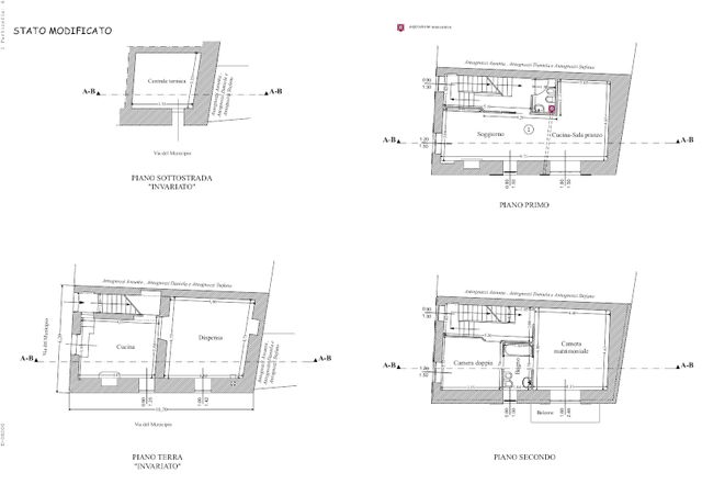
Ground floor is an independent and comfortable apartment consisting of living room with fireplace, kitchenette, bedroom and bathroom.
-
First floor, large living area with lounge, dining room and open kitchen, guest bathroom.
-
Second floor, large double bedroom, sitting room (or second bedroom) and bathroom designed for access from both rooms.
-
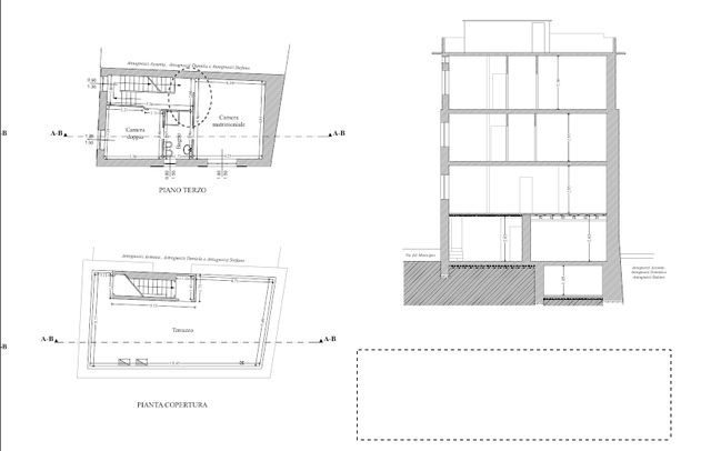
Third floor, large bedroom, study and bathroom with double access
-
Top floor includes a 55 sqm terrace equipped with electricity and water, with sweeping 360 ° views from the Sibillini to the Adriatic Sea.
Condition
Perfectly and completely renovated in 2016
Utlities
Heating with pellet-fired radiators. The boiler is located in the boiler room in the basement. Solar panel on the roof for hot water
Location
The house for sale in Monte Rinaldo is located in the historic center of the town and is:
25 km from Fermo
25 km from the sea
25 km from the highway
100 km from Ancona airport
Potential use
Residence or holiday home or a charming B&B
-
Details
- Property Type
- Terraced/Townhouse
- Status
- Excellent
- Year of construction
- 1700
- Stories / levels
- 4
- Total living m2
- 200 m²
- Telephone
- ADSL/Cable
- max. occupancy
- 10
-
Room information
- Total number of rooms
- 9
- Bedrooms
- 5
- En-suite bathrooms
- 2
- All bathrooms
- 4
- Additional kitchens
- 1
- Garage
- Detached
- Terrace size
- 55 m²
- Cellar
- 12 m²
- TV
- Cable / Satellite
- Solarium
- yes
- Open kitchen
- yes
-
Special features
- Double glazing
- Private Terrace
- Barbeque
- TV available in rooms
- Open fireplace
- Guesthouse
- Dishwasher
- Solar hotwater
- Satellite dish
- Roof solarium
- Extra wide doors
- Exterior Lights
-
Services in the area
- Supermarket 5 km
- Hospital 25 km
- Primary school 5 km
- Airport 100 km
- Golf Course 23 km
- Train Station 25 km
- Coast 25 km





















































