Magnificent duplex flat in the Grandchamp estate, at the gateway to the capital.
Île-de-France - Parijs, Yvelines (78)
€ 1.265.880 ID: 170751
A29706ENT78 - We invite you to become part of history by purchasing this exceptional and unique flat.
Let yourself be seduced by the completely refurbished flats of the Château de Grandchamp.
Information about risks to which this property is exposed is available on the Géorisques website : https://www.georisques.gouv.fr
Show less...
-
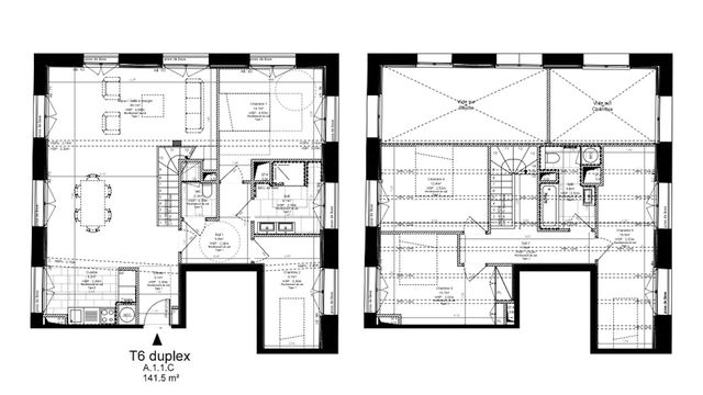
Details
- Type Onroerend Goed
- Appartement(en) / flat
- Woonoppervlakte m2
- 141 m²
-
Kamerinformatie
- Slaapkamers
- 5
- Badkamers
- 2











