Grimaud - Beauvallon. Exceptional New build contemporary villa, 6 bedrooms, sea view, pool, garages
Côte d'Azur / Alpes-Maritimes, Var (83)
7.350.000 € ID: 175806
A41206OVI83 - Grimaud – Beauvallon | Exceptional New Contemporary Villa
In one of the most sought-after and secure private estates in Beauvallon, a superb new villa offers panoramic views over the Gulf of Saint-Tropez and the surrounding hills.
Thanks to its optimal orientation, the Mediterranean sun will illuminate every room throughout the day.
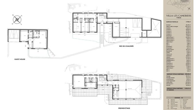
Its contemporary architecture reveals bright spaces over two levels, with a vast 140m² living area opening onto terraces and the pool area, creating a perfect continuity between indoors and outdoors, 4 suites with dressing rooms and bathrooms, laundry room, pantry, wine cellar, fitness room, and a 4-car garage.
A guest house with 2 en-suite bedrooms, ideal for hosting in complete privacy, and a double garage.
Landscaped garden with Mediterranean plants.
Built by one of Europe's most renowned developers.
Completion Summer 2028.
Information about risks to which this property is exposed is available on the Géorisques website : https://www.georisques.gouv.fr
Show less...
-
Datos
- Tipo de Inmueble
- Casa familiar
- Tamaño de la vivienda (m2)
- 599 m²
- Parcela m2
- 4.785 m²
- Terrenos HA / legalmente
- Grounds 0-1 HA
- paísaje
- Mar
-
Habitaciones
- Dormitorios
- 6
- Cuartos de baño suplementarios
- 6
-
características especiales
- Piscina



















