Cap d'Antibes - Rare ! New build, luxury 3 bedrooms apartment, seaview
Côte d'Azur / Alpes-Maritimes, Alpes Maritimes (06)
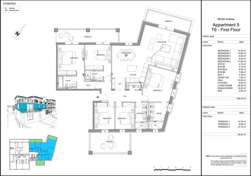
3.200.000 € ID: 172229Cap d'Antibes - 300 m from Garoupe Beach.
Apartment n°5 : Located on the 1st floor with sea views. It includes : entrance hall, large living/dining room with an open fully equipped kitchen, 3 en-suite bedrooms, guests toilets.
Garage available for 50 000€. Possibility to have the interiors taylor made to fit your requirements ! Low notary fees. Monthly charges 1155€.
Information about risks to which this property is exposed is available on the Géorisques website : https://www.georisques.gouv.fr
-
Details
- Wohnungstyp
- Apartement(en)
- Kondition
- Neu
- Wohnfläche (m2)
- 156 m²
- Aussicht
- Meer
-
Zimmerinformation
- Schlafzimmer
- 5
- Andere Bäder
- 5
- Garage
- Internierter
-
Besonderheiten
- Doppelfenster
- Schwimmbad
- Air Conditioning



















