Building semidetached house on two levels for sale in Montecassiano, Le Marche
Die Marken
220.000 € ID: 133009The building is semidetached house on two levels, the house is connected to a small ruined house with no occupants
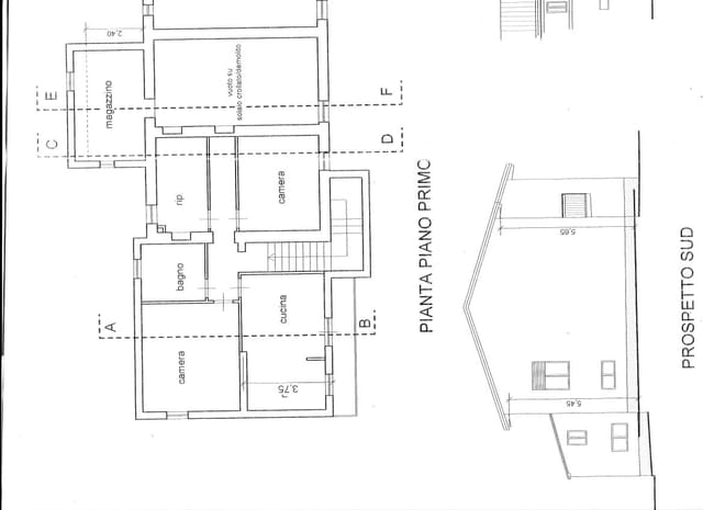
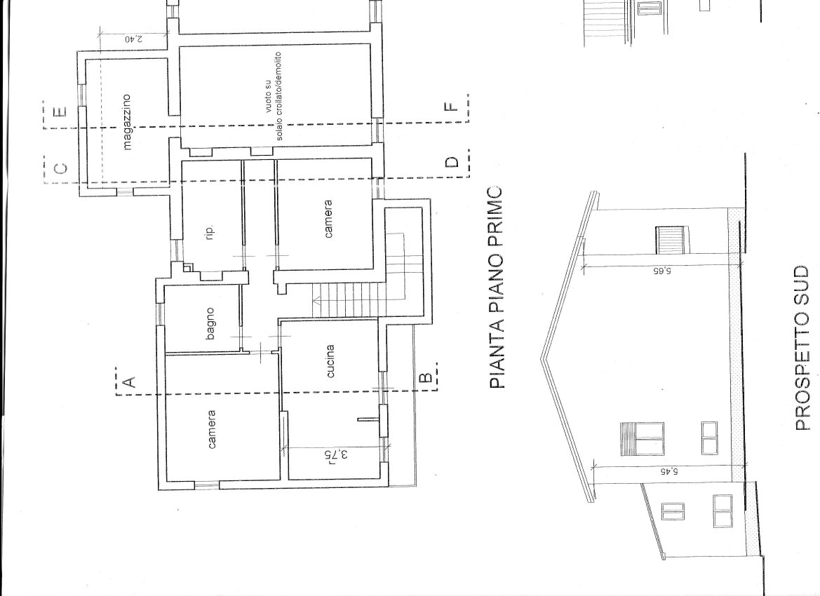
Upstairs is the main living area 160 m2 consisting of a typical Italian kitchen with fireplace and balcony, an enjoining dining room, large bathroom with modern shower, hallway, large sleeping room, office/sleeping room, large living room;
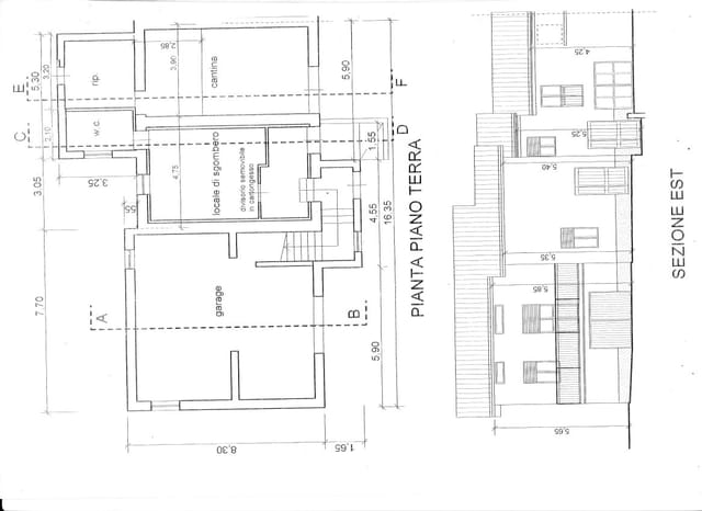
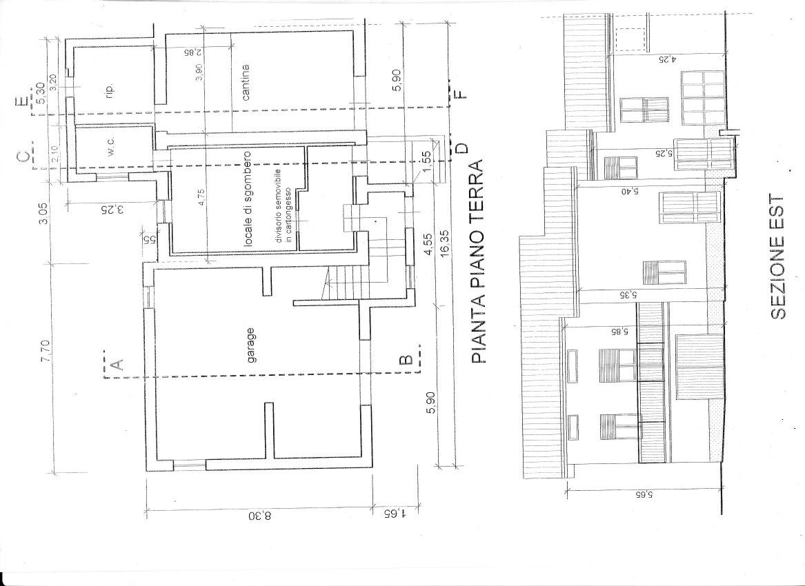
downstairs is another living area 96m2 consisting of master bedroom with bathroom/shower, hallway, kitchen, small sleeping room, and a storage room.
On the ground level there is a garage consisting of 63m2. In addition the property includes a covered carport for two cars.
The work included the following: reinforcing the roof; transforming a ruined section of the house into an upstairs living room and a connection to the downstairs apartment; new double-glass energy efficient windows and shutters; a new kitchen and bathroom; installing an energy efficient solar/pellet powered furnace for heating and hot water; installing a water pump to increase water pressure; new stucco and paint on the house’s exterior; converting one bedroom into a dining room adjacent to the kitchen; installing an energy efficient fireplace with a temperature controlled fan in the kitchen; interior painting and decorating; creating a drainage system around the property and removing overgrowth of trees and plants surrounding the house.
The house is fully equipped with newly purchased appliances and furniture (stove, oven, refrigerator, dishwasher, wash machine, microwave oven, dining tables and chairs, sofas, shelving units, cupboards, wardrobe closets, king size bed, single beds, sofa bed, garden furniture, garden tools, lawnmower, chain saw and more).
The property is located on the outskirts of Montecassiano in a secluded valley totally surrounded by farm land (sunflowers). The property is about 6kms from Montecassiano/4 kms from Appignamo/30 kms from the beaches on the Adriatic coast/100 kms from mountain hiking/skiing in the Sibilini Mountains/ 40 kms from Falconara Airport Ancona.
The property has a well maintained garden with an abundance of plants and trees; eight 100 year-old olive trees; and various fruit producing trees (apricot, apple, fig, pomegranate, kaki, cherry, pear, peach, plum, walnut). In addition, there are three beautiful fully grown palm trees and other tropical/exotic trees and plants.
-
Details
- Wohnungstyp
- Family home
- Kondition
- Gut
- Kategorie Detail
- Auf dem Lande
- Etagen/Stockwerke
- 2
- Wohnfläche (m2)
- 310 m²
- Boden HA / Legal
- Grounds 0-1 HA
-
Zimmerinformation
- Gesamtanzahl der Zimmer
- 9
- Schlafzimmer
- 3
- Andere Bäder
- 2
- Extra Küchen
- 1
- Garagenplätze
- 2
- Gesamtparkplatz
- 2
-
Besonderheiten
- Doppelfenster
- TV in zimmer
- Satelit Fernsehen
- Gästehaus
- Kamin
-
Dienstleistungen in der Nähe
- Supermarkt 4 km
- Grundschule 4 km
- Flughafen 40 km
- Bahnhof 30 km
- Küste 30 km























