Beautiful exeptional new build T5 villa in the heart of Anglet, quartier 5 Cantons
Aquitaine, Pyrénées-Atlantiques (64)
1.470.000 € ID: 176205
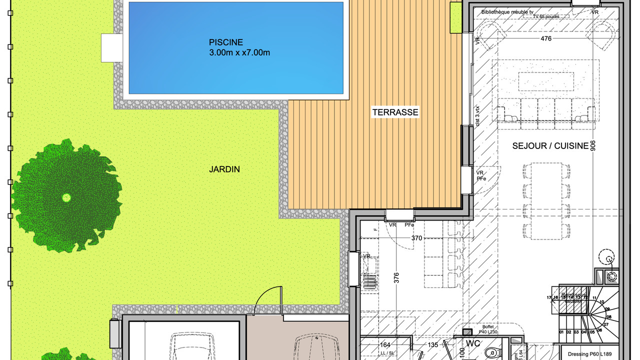
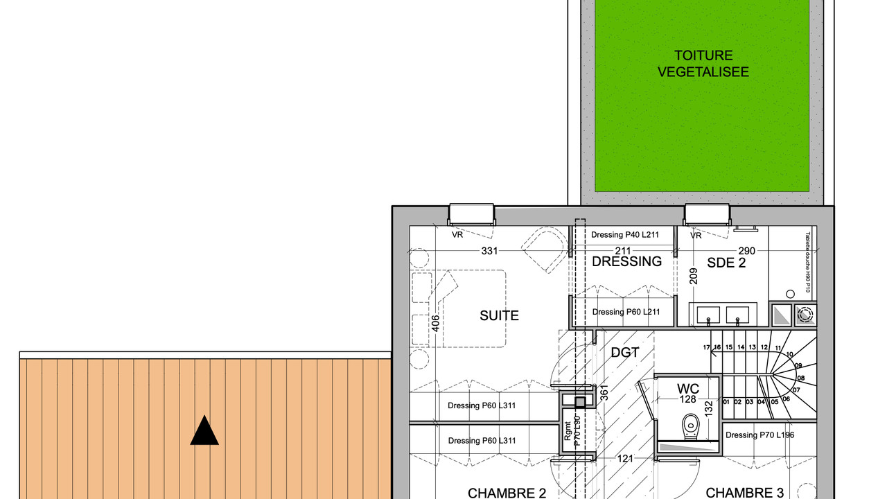
A41923KRK64 - 4-bedroom new build villa (including 2 mater suites) with 154m² of living space, set on a landscaped plot of 382m² .
Large 62m² living room/kitchen opening onto the outisde.
Heated 21m² swimming pool and 32² terrace in the heart of a 155m² garden.
High-end features, storaage, pantry and enclosed garage.
Delivery 4Q 2027.
Information about risks to which this property is exposed is available on the Géorisques website : https://www.georisques.gouv.fr
Show less...
-
Details
- Wohnungstyp
- Villen
- Kondition
- Verkauf von Plan
- Wohnfläche (m2)
- 155 m²
- Grundstücksfläche (m2)
- 155 m²
- Boden HA / Legal
- Grounds 0-1 HA
- Abwässerung
- Stadt
-
Zimmerinformation
- Schlafzimmer
- 4
- Andere Bäder
- 3
- Garage
- Internierter
-
Besonderheiten
- Doppelfenster
- Schwimmbad















