New flat in Toulouse, a privileged address facing the Garonne, Uninterrupted view, TERRACE of 20m2
Midi-Pyrénées, Haute-Garonne (31)
729.000 € ID: 174532
A27238AK31 -
Delivery : Immediate
Price direct from the developer
Reduced notary fees.
Visible by appointment only.
EVERYTHING AT YOUR HAND FOR SIMPLICITY in everyday life
- Opposite the future Ile du Ramier urban park
- School groups from nursery to high school, just a few minutes from the residence
- Bus stop opposite the residence
- A wide range of shops on the avenue
- A 7-minute walk from the tramway, taking you to the city centre in just a few minutes
Connected to Europe's major cities via
Toulouse-Blagnac airport
SNCF train station in the heart of the town
A green city just an hour and a half from the Pyrenees and the Mediterranean Sea
Information about risks to which this property is exposed is available on the Géorisques website : https://www.georisques.gouv.fr
Show less...
-
Datos
- Tipo de Inmueble
- Apartamento(s)
- tipo vivienda
- Venta del plan
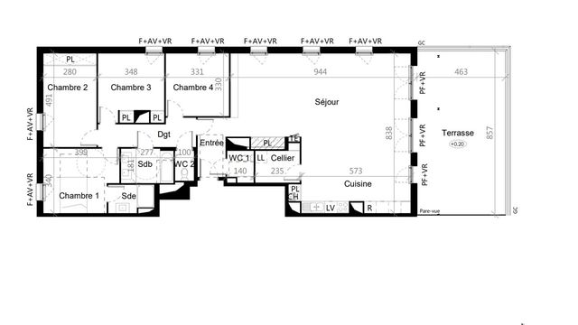
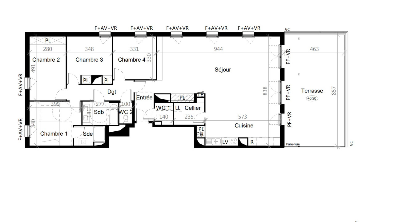
- Tamaño de la vivienda (m2)
- 143 m²
- Parcela m2
- 20 m²
- Terrenos HA / legalmente
- Newly Built Property
-
Habitaciones
- Dormitorios
- 4
- Cuartos de baño suplementarios
- 2













