Vendesi a Ostuni bel terreno con progetto
Apulia-Puglia, Brindisi
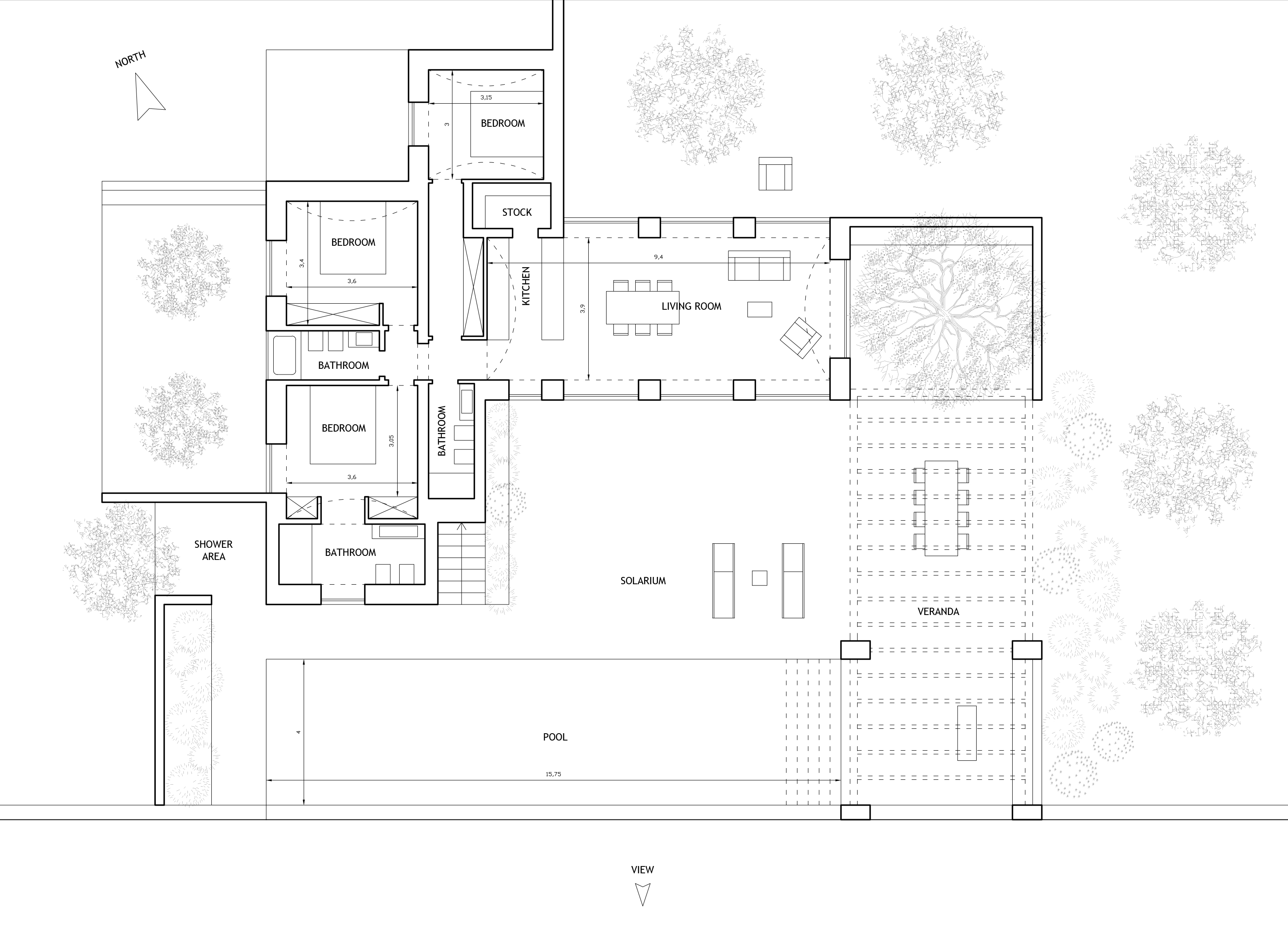
90.000 € ID: 158422Vendesi in agro di Ostuni, bel terreno di 9340 mq in zona riservata e panoramica. Il terreno viene venduto con progetto approvato ed oneri pagati al comune di Ostuni per la realizzazione di una bella villa come da render grafico.
La villa è ideale sia per residenza privata che per casa vacanza con piscina in un suggestivo contesto naturale.
-
Details
- Wort Anbieter
- Top-Lage
- Wohnungstyp
- Bauland
- Kondition
- Gut
- Aussicht
- Countryside













