Nice - Port Area. Very rare new build opportunity ! 2 bedroom apartment with terrace, private parkin
Côte d'Azur / Alpes-Maritimes, Alpes Maritimes (06)
730.000 € ID: 174920
A39524OVI06 - Nice - Perfect location for this new build ! Few minutes walk from the Port and Old Town with shops and restaurants at hands ! Only for a few privileged owners as only 12 apartments will be available.
By a one of the most acclaimed developper in France.
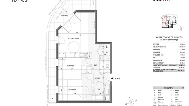
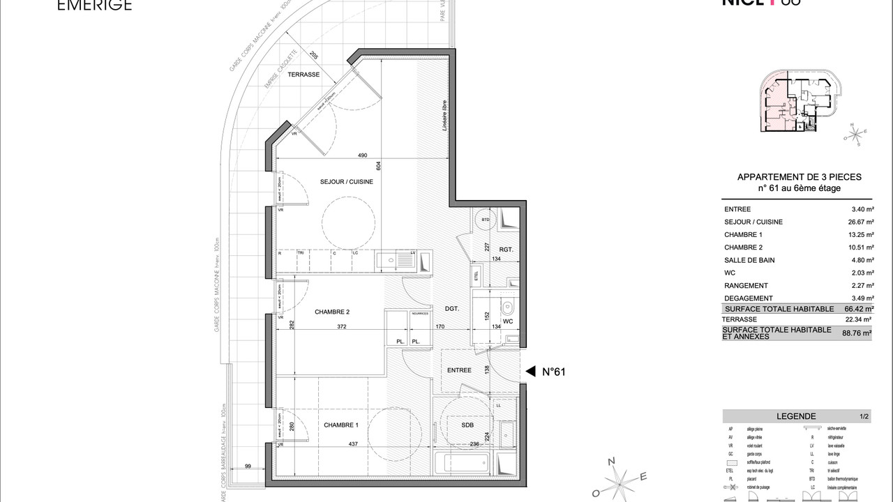
For sale : very bright 2 bedroom apartment located on the 6th floor with an entrance, living room with open kitchen opening unto the terrace facing West, 2 bedrooms with access to the terrace, bathroom, shower room, toilets.
Private parking.
Completion set for 2nd quarter 2028.
A unique opportunity !
Information about risks to which this property is exposed is available on the Géorisques website : https://www.georisques.gouv.fr
Show less...
-
Dettagli
- Tipo di Proprietà
- Appartemento / appartementi
- zona abitabile (m2)
- 66 m²
- Terreno m2
- 22 m²
- Terreno HA / Giuridico
- Grounds 0-1 HA
-
Informazioni camere
- Stanze da letto
- 2
- Totale bagni
- 1











