Beautiful 4-bedrooms apartment, 139m² with a large terrace and triple exposure in Nice Gare du Sud -
Côte d'Azur / Alpes-Maritimes, Alpes Maritimes (06)
1.490.000 € ID: 176502
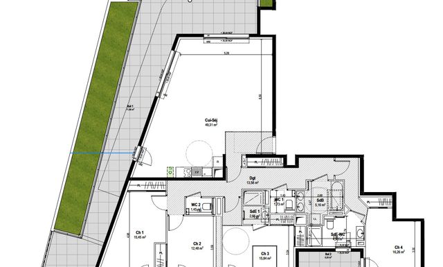
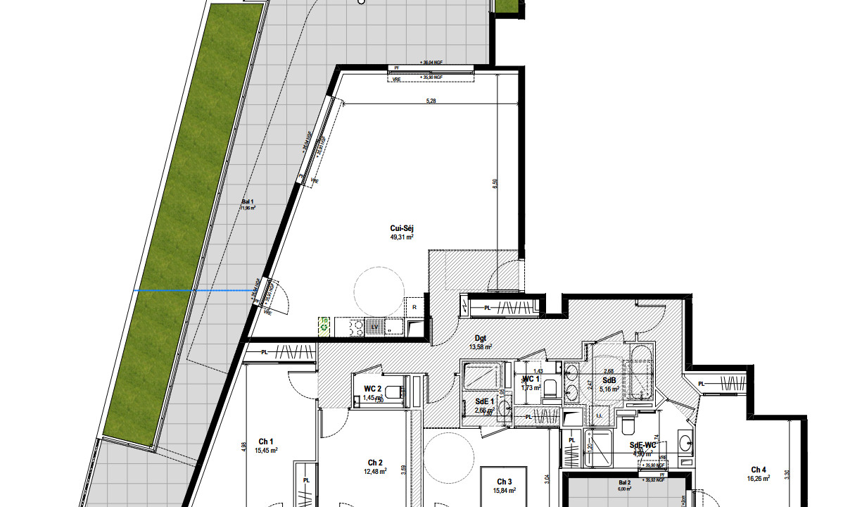
A42441VAP06 - In the heart of the iconic Libération – Gare du Sud neighborhood, discover this magnificent new 4-bedroom apartment located on the 4th floor of a contemporary off-plan development. With a generous surface area of 1,500 sq ft, it benefits from triple exposure offering remarkable light throughout the day.
The living space consists of a large living room with an open kitchen measuring 49 m², extended by a spectacular 69 m² terrace, a true open-air room ideal for entertaining or relaxing. The sleeping area offers a master suite with a shower room and closet, three comfortable bedrooms, a bathroom, a shower room with toilet, and a separate toilet.
The amenities have been designed to combine comfort, energy efficiency, and well-being: large-format tiling, centralized electric shutters, double glazing, heat pump with cooling, fiber optics, enhanced security, and pre-equipment for electric vehicles.
Information about risks to which this property is exposed is available on the Géorisques website : https://www.georisques.gouv.fr
Show less...
-
Dettagli
- Tipo di Proprietà
- Appartemento / appartementi
- zona abitabile (m2)
- 139 m²
- Terreno m2
- 78 m²
- Terreno HA / Giuridico
- Grounds 0-1 HA
-
Informazioni camere
- Stanze da letto
- 4
- Totale bagni
- 2









