Nice - Le Port. Programme neuf rare par son emplacement. Appartement 3 pièces, terrasse, parking
Côte d'Azur / Alpes Maritimes, Alpes Maritimes (06)
620 000 € ID: 174544
A38767OVI06 - Nice - Le Port. Emplacement idéal pour ce programme neuf avec le Port et Vieux Nice avec leurs restaurants et commodités à quelques minutes à pieds !
Pour quelques privilégiés car uniquement 12 appartements disponibles !
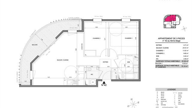
A vendre : Au 4ème étage, lumineux appartement 3 pièces comprenant une entrée, séjour avec sa cuisine ouverte ouvrant sur la terrasse à l'Ouest, 2 chambres, salle de bains, toilettes.
Parking privatif.
Livraison prévue mi-2028.
Superbe opportunité conçue par un promoteur reconnu pour la qualité de ses réalisations en France et à l'International.
Les informations sur les risques auxquels ce bien est exposé sont disponibles sur le site Géorisques : https://www.georisques.gouv.fr
Moins...
-
Détails
- Type de bien
- Appartement(s)
- Surface habitable (m2)
- 61 m²
- Terrain de (m2)
- 14 m²
- Taille HA ou Juridique
- Grounds 0-1 HA
-
Description de la chambre
- Chambres
- 2
- Salles de Bains
- 1











