Grimaud - Beauvallon. Villa neuve contemporaine, 6 pièces, piscine, vues panoramiques
Côte d'Azur / Alpes Maritimes, Var (83)
5 325 000 € ID: 175801
A41199OVI83 - Grimaud – Beauvallon | Villa neuve contemporaine d'exception
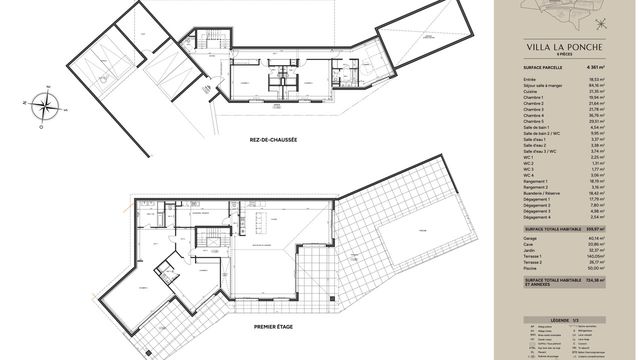
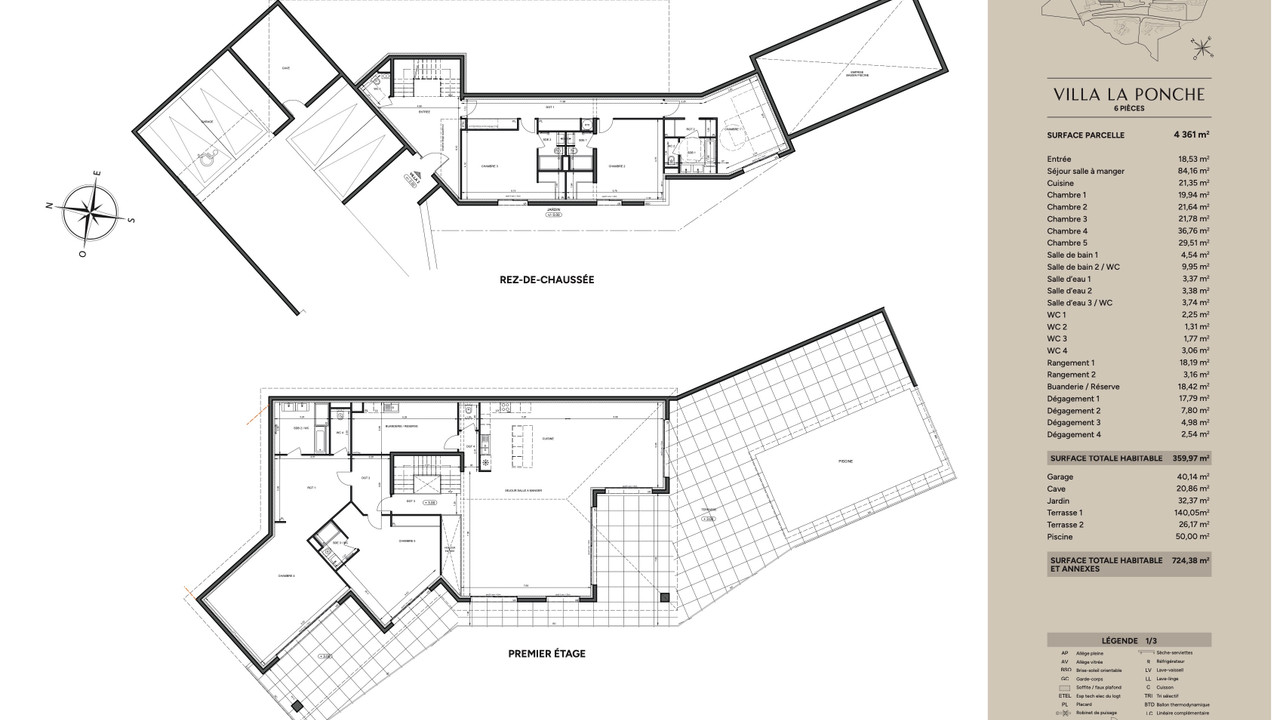
Au sein d'un domaine privé et sécurisé parmi les plus prisés de Beauvallon, superbe villa neuve offrant des vues panoramiques sur le Golfe de Saint-Tropez et les collines environnantes.
Son architecture contemporaine révèle des volumes lumineux sur deux niveaux, avec un vaste séjour ouvert sur les terrasses et les plages de la piscine créant une continuité parfaite entre intérieur et extérieur , 5 superbes suites, chacune dotée d'un dressing et d'une salle de bains privative, une buanderie, garage pour 4 véhicules, une cave.
Les jardins paysagers, composés d'essences méditerranéennes, subliment l'atmosphère paisible et exclusive du lieu.
Réalisée par l'un des promoteurs les plus réputés d'Europe, cette villa réunit excellence, prestige et modernité.
Livraison prévue à l'Été 2028.
Les informations sur les risques auxquels ce bien est exposé sont disponibles sur le site Géorisques : https://www.georisques.gouv.fr
Moins...
-
Détails
- Type de bien
- Maison de famille
- Surface habitable (m2)
- 356 m²
- Terrain de (m2)
- 4 361 m²
- Taille HA ou Juridique
- Grounds 0-1 HA
-
Description de la chambre
- Chambres
- 5
- Salles de Bains
- 5
-
Particularités
- Piscine

















