Beausoleil - Programme neuf - Appartement 3 pièces, terrasse, possibilité parking
Côte d'Azur / Alpes Maritimes, Alpes Maritimes (06)
777 000 € ID: 175901
A41379OVI06 - Beausoleil - Prince Rainier III
À 500 m seulement à pied de Monaco, la résidence semble faire partie de la principauté et bénéficie au quotidien de toutes ses richesses.
Dans un cadre colinaire résidentiel, cette adresse, facile d'accès, propose à pied de nombreuses commodités : commerces raffinés, supérette, école ou collège.
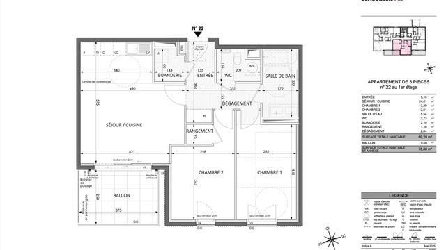
Cet appartement situé au 1er étage comprend : une entrée, séjour avec sa cuisine ouverte ouvrant sur la terrasse en exposition Sud, 2 chambres dont 1 avec dressing, 1 salle de douche, wc indépendant, buanderie, rangements.
Parking privatif disponible.
Livraison 2eme trimestre 2028.
Les informations sur les risques auxquels ce bien est exposé sont disponibles sur le site Géorisques : https://www.georisques.gouv.fr
Moins...
-
Détails
- Type de bien
- Appartement(s)
- État
- Programme neuf
- Surface habitable (m2)
- 69 m²
- Terrain de (m2)
- 10 m²
- Taille HA ou Juridique
- Grounds 0-1 HA
-
Description de la chambre
- Chambres
- 2
- Salles de Bains
- 1













