Nice - Le Port. Programme neuf rare par son emplacement. Dernier étage Appartement 3 pièces, terrasse, parking
Côte d'Azur / Alpes Maritimes, Alpes Maritimes (06)
660 000 € ID: 174551
A38776OVI06 - Nice - Le Port. Emplacement idéal pour ce programme neuf avec le Port et Vieux Nice avec leurs restaurants et commodités à quelques minutes à pieds !
Pour quelques privilégiés car uniquement 12 appartements disponibles !
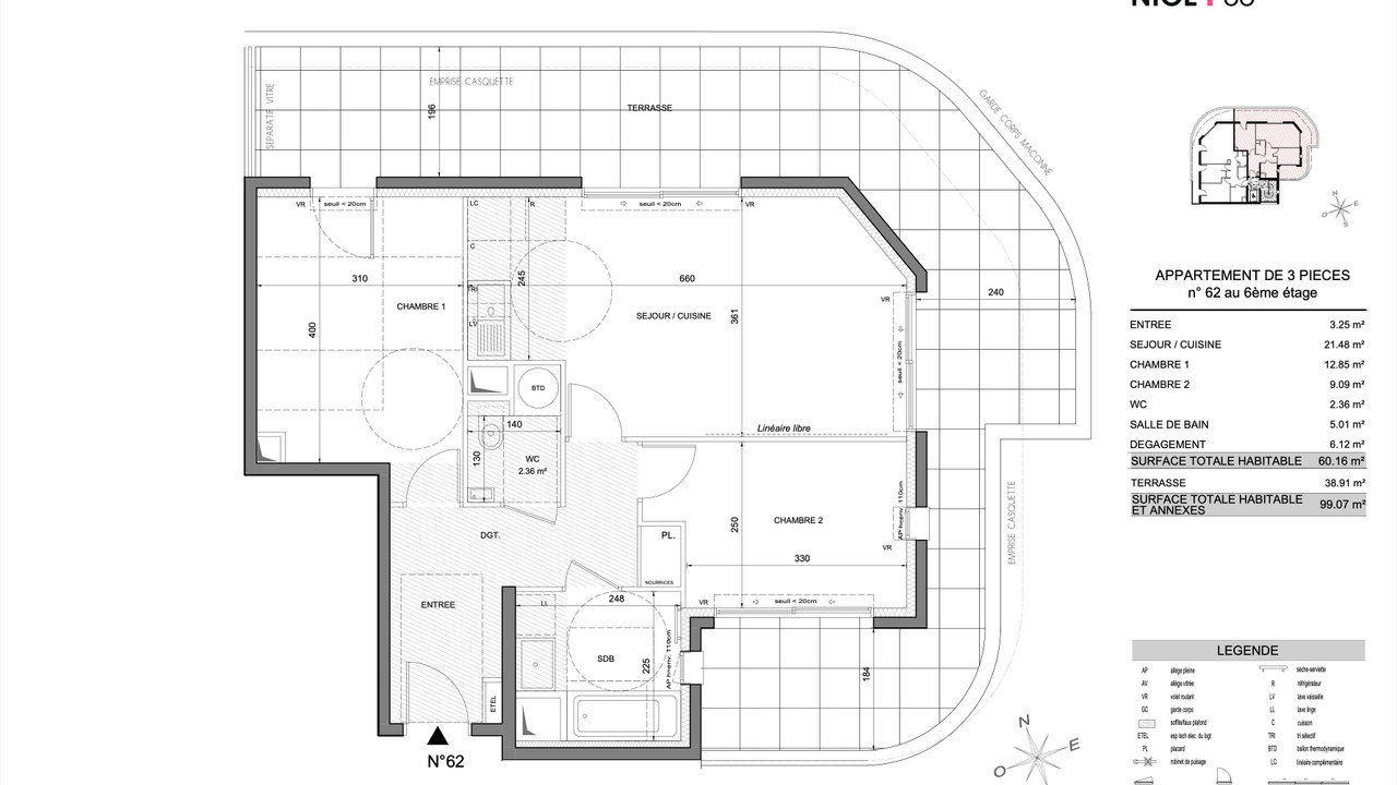
A vendre : Au 6ème et dernier étage, lumineux appartement 3 pièces comprenant une entrée, séjour avec sa cuisine ouverte, 2 chambres, salle de bains, toilettes.
Le séjour et les 2 chambres ouvrant sur la grande terrasse circulaire de 39m2 !
Parking privatif.
Livraison prévue mi-2028.
Superbe opportunité conçue par un promoteur reconnu pour la qualité de ses réalisations en France et à l'International.
Les informations sur les risques auxquels ce bien est exposé sont disponibles sur le site Géorisques : https://www.georisques.gouv.fr
Moins...
-
Détails
- Type de bien
- Appartement(s)
- Surface habitable (m2)
- 60 m²
- Terrain de (m2)
- 39 m²
- Taille HA ou Juridique
- Grounds 0-1 HA
-
Description de la chambre
- Chambres
- 2
- Salles de Bains
- 1











