Antibes - APPARTEMENT DUPLEX DE LUXE HORS PLAN. Prêt au printemps 2024
Côte d'Azur / Alpes Maritimes, Alpes Maritimes (06)
800 000 € ID: 174985
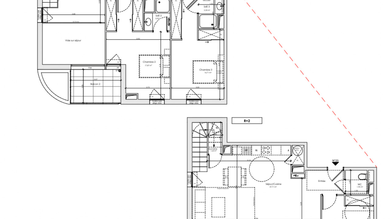
A19455SIM06 - Cet appartement, qui sera livré au printemps 2024 et il offrira une vie moderne et luxueuse sur deux étages avec 3 chambres, 3 salles de bains, deux espaces de vie et 2 terrasse avec de belles vues. Vendu avec double garage.
Les informations sur les risques auxquels ce bien est exposé sont disponibles sur le site Géorisques : https://www.georisques.gouv.fr
Moins...
-
Détails
- Type de bien
- Appartement(s)
- Surface habitable (m2)
- 114 m²
- Terrain de (m2)
- 16 m²
- Taille HA ou Juridique
- Grounds 0-1 HA
-
Description de la chambre
- Chambres
- 3
- Salles de Bains
- 3







